Podobne oferty
KBN-MS-1764 -- || -- GBI-MS-2035 -- || -- KBN-MS-1794 -- || -- GBI-MS-2116 -- || --Oświęcim,
mieszkanie na sprzedaż
Liczba pokoi
2
2
m2
40,35
40,35
zł/m2
12 000,00
12 000,00
484 200 zł
Opis nieruchomości
REZERWACJA!!!
Oferujemy nowe, wykończone 2 pokojowe mieszkanie na parterze apartamentowca
jako przykład jednego z wielu lokali mieszkalnych mieszczących się w budynku, który wzniesiony został nowo powstałym osiedlu "Apartamenty Parkowe".
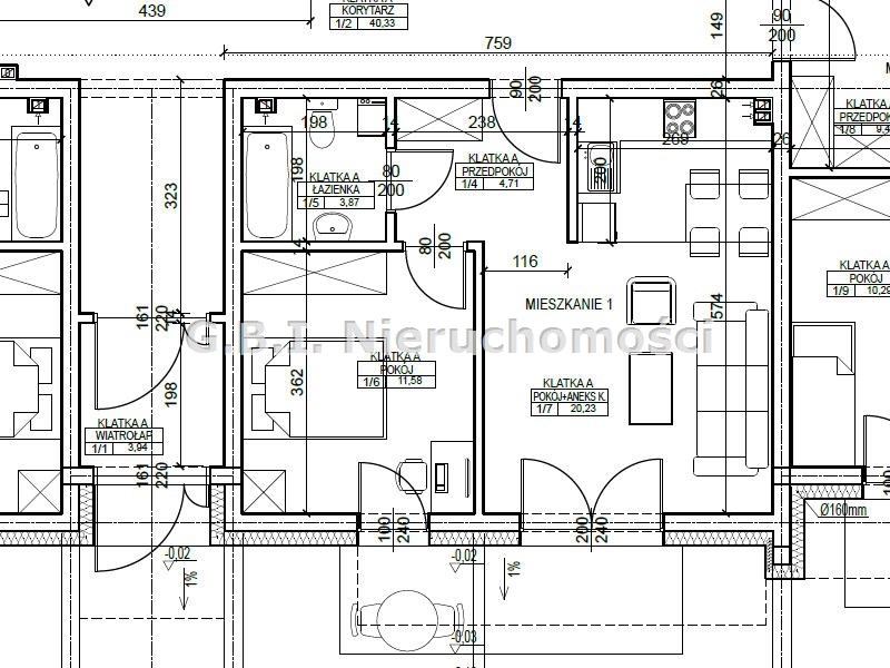
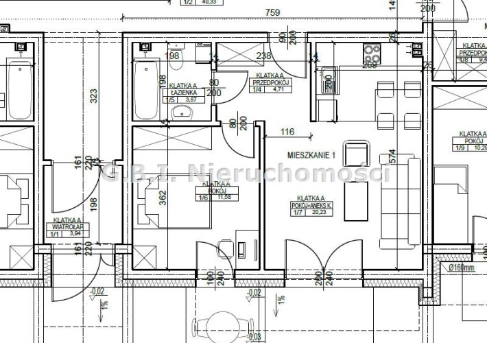
Lokal o łącznej pow. użytkowej wynoszącej 40,35 m2 składa się z następujących pomieszczeń:
CECHY CHARAKTERYSTYCZNE
Oferujemy nowe, wykończone 2 pokojowe mieszkanie na parterze apartamentowca
jako przykład jednego z wielu lokali mieszkalnych mieszczących się w budynku, który wzniesiony został nowo powstałym osiedlu "Apartamenty Parkowe".
Lokal o łącznej pow. użytkowej wynoszącej 40,35 m2 składa się z następujących pomieszczeń:
- przedpokoju 4,68 m2,
- łazienki z WC 3,82 m2,
- pokój 11,62 m2,
- pokój + aneks kuchenny 20,23 m2.
- taras 20,09 m2,
- ogródek 19,48 m2.
CECHY CHARAKTERYSTYCZNE
- klimatyzacja w każdym lokalu.
- każde mieszkanie posiadać będzie balkon (lub w przypadku lokali położonych na parterze taras) wykończony takimi materiałami jak szkło, metal czy odporna na warunki atmosferyczne deska kompozytowa.
- w każdym segmencie bloków zainstalowana będzie winda renomowanej firmy OTIS.
- lokal zostanie oddany do rąk nowego właściciela w tzw. standardzie deweloperskim, który pozwala na częściową, indywidualną aranżację wnętrz – wedle uznania.
- ściany pomieszczeń zostaną wykończone tynkami wapienno - cementowymi.
- w każdym pomieszczeniu przewidziano po 3 punkty elektryczne; w kuchni dodatkowo doprowadzona zostanie tzw. siła.
- planowana inwestycja wzniesiona zostanie w umiarkowanie cichej i spokojnej okolicy.
- w pobliżu znajduje się Galeria Niwa, wielkopowierzchniowy sklep sieci Lidl, inne punkty handlowo usługowe oraz szkoły. Cały teren wokół nieruchomości zostanie ogrodzony i w pełni wyposażony w niezbędną infrastrukturę, m. in. drogę dojazdową, chodniki, lampy uliczne, itp.
- w pobliżu funkcjonują również przedszkola, szkoły a także ośrodek zdrowia oraz tereny sportowo – rekreacyjne, atrakcyjna architektura zieleni.
- osoby preferujące równowagę pomiędzy komfortem mieszkania, bliskością do centrum miasta i zielonym otoczeniem z pewnością znajdą tu coś dla siebie.
- CO oraz woda użytkowa zapewniona z miejskiej sieci grzewczej. Zastosowano tu ogrzewanie podłogowe.
- w garażu podziemnym
- w cenie 50 000 zł z komórką lokatorską,
- w cenie 45 000 zł bez komórki lokatorskiej,
- na parkingu przed budynkiem, za kwotę 30 000 zł.
W celu uzyskania dalszych informacji lub dokonania rezerwacji apartamentu zapraszamy do naszego biura.
Nota prawna
Opis oferty zawarty na stronie internetowej sporządzany jest na podstawie oględzin nieruchomości oraz informacji uzyskanych od właściciela, może podlegać aktualizacji i nie stanowi oferty określonej w art. 66 i następnych K.C.
Podstawowe
Symbol oferty
GBI-MS-2139
Powierzchnia
40,35 m²
Powierzchnia użytkowa
40,35 m²
Powierzchnia
balkonów/tarasów
balkonów/tarasów
20,09 m²
Liczba pokoi
2
Piętro
parter
Szczegóły
Rodzaj budynku
apartamentowiec
Technologia budowlana
inna
Standard





Liczba pięter w budynku
2
Garaż
garaż
Stan lokalu
Do wprowadzenia
Stan prawny
Własność
Okna
nowe PCV
Instalacje
nowe
Balkon
brak
Liczba tarasów
1
Rok budowy
2024
Widok
na inne budynki
Gaz
brak
Woda
tak - miejska
Dojazd
asfalt
Otoczenie
zabudowa wielorodzinna
Ogrzewanie
miejskie
Winda
tak
Liczba wind
1
Tarasy
taras
Usytuowanie
jednostronne
Cena garażu
50000
Pomieszczenia
Rodzaj kuchni
aneks kuchenny - połączony z salonem
Powierzchnia kuchni
m2
Typ łazienki
razem z wc
Powierzchnia łazienki
m2
Liczba przedpokoi
1
Kontakt z agentem
