Podobne oferty
KBN-MS-1805 -- || -- GBI-MS-2131 -- || -- GBI-MS-2132 -- || -- GBI-MS-2133 -- || --3
67,72
9 400,00
Marzysz o nowoczesnym, funkcjonalnym lokum w świetnej lokalizacji? Poznaj wyjątkową ofertę apartamentu w inwestycji „Apartamenty Parkowe” – osiedlu, które łączy komfort mieszkania w nowoczesnym budynku z dogodnym dostępem do miejskich udogodnień i zielonych terenów rekreacyjnych.
Doskonała lokalizacja
Inwestycja położona jest w umiarkowanie cichej i spokojnej okolicy, jednocześnie z świetnym dostępem do infrastruktury miejskiej. W najbliższym otoczeniu znajdują się:
Galeria Niwa, sklep Lidl, punkty handlowo-usługowe
szkoły, przedszkola, ośrodek zdrowia
tereny sportowo-rekreacyjne oraz atrakcyjna architektura zieleni
wygodny dojazd do centrum miasta oraz komunikacji miejskiej
Idealna propozycja dla osób ceniących harmonię między wygodą życia, bliskością natury i infrastrukturą miejską.
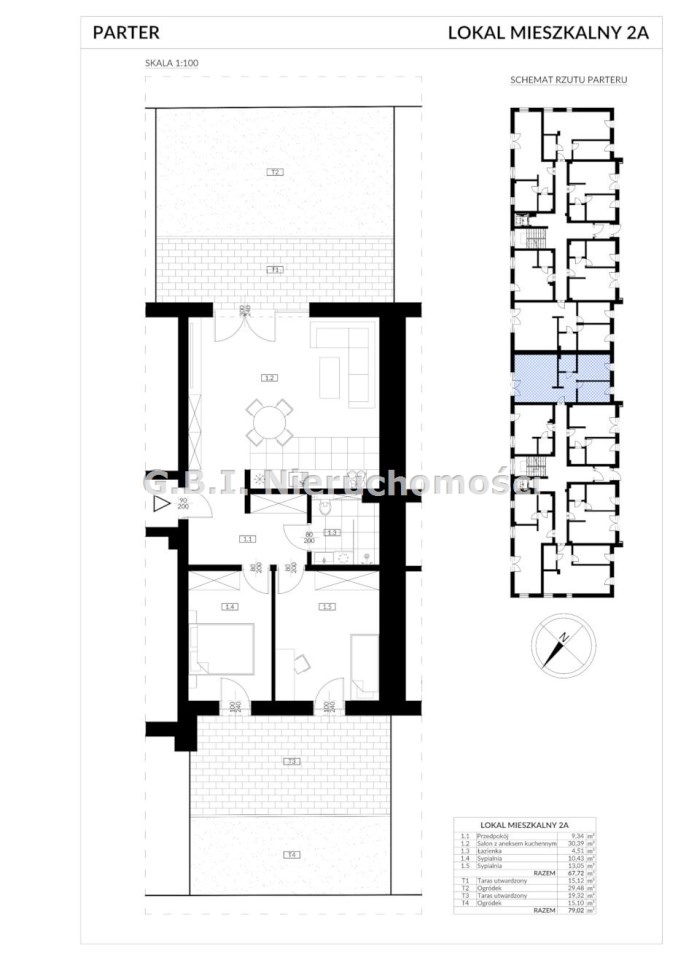
Opis przykładowego mieszkania
Oferujemy nowe, 3 pokojowe mieszkanie na parterze apartamentowca
jako przykład jednego z wielu lokali mieszkalnych mieszczących się w budynku, który zostanie wzniesiony na nowo powstałym osiedlu "Apartamenty Parkowe".
Lokal o łącznej pow. użytkowej wynoszącej 67,72 m2 składa się z następujących pomieszczeń:
- przedpokoju 9,34 m2,
- łazienki z WC 4,51 m2,
- pokój 10,43 m2,
- pokój 13,05 m2,
- pokój + aneks kuchenny 30,39 m2.
- taras 34,44 m2 = 15,12 m2 + 19,32 m2,
- ogródek 44,58 m2 = 29,48 m2 + 15,10 m2.
Cena dotyczy tylko przykładowej oferty. Wizualizacja inwestycji ma charakter poglądowy.
* OGÓLNY OPIS INWESTYCJI *
Podana cena dotyczy przykładowej oferty – dostępne są różne metraże i układy mieszkań.
Najważniejsze atuty inwestycji
✔ klimatyzacja w każdym mieszkaniu
✔ ogrzewanie podłogowe, CO i ciepła woda z miejskiej sieci
✔ winda firmy OTIS
✔ taras lub balkon w każdym lokalu (wykończenie szkło, metal, deska kompozytowa)
✔ ściany z cegły silikatowej – świetna akustyka i izolacja termiczna
✔ osiedle ogrodzone, pełna infrastruktura drogowa i oświetlenie
✔ możliwość zakupu mieszkania wykończonego pod klucz
Standard deweloperski pozwala na swobodną aranżację wnętrz, a opcjonalna usługa „pod klucz” umożliwia wprowadzenie się od razu po odbiorze mieszkania – bez dodatkowego stresu i poszukiwania ekip remontowych.
Miejsca postojowe (zakup obowiązkowy)
garaż podziemny z komórką lokatorską – 50 000 zł
garaż podziemny bez komórki – 45 000 zł
miejsce zewnętrzne – 30 000 zł
Zapraszamy do kontaktu
Nie zwlekaj – zarezerwuj spotkanie i zobacz na żywo swój przyszły apartament!
Skontaktuj się z naszym biurem w celu uzyskania szczegółowych informacji, rezerwacji mieszkania.
CECHY CHARAKTERYSTYCZNE
- klimatyzacja w każdym lokalu.
- każde mieszkanie posiadać będzie balkon (lub w przypadku lokali położonych na parterze taras) wykończony takimi materiałami jak szkło, metal czy odporna na warunki atmosferyczne deska kompozytowa.
- w każdym segmencie bloków zainstalowana będzie winda renomowanej firmy OTIS.
- lokal zostanie oddany do rąk nowego właściciela w tzw. standardzie deweloperskim, który pozwala na częściową, indywidualną aranżację wnętrz – wedle uznania.
- ściany pomieszczeń zostaną wykończone tynkami wapienno - cementowymi.
- w każdym pomieszczeniu przewidziano po 3 punkty elektryczne; w kuchni dodatkowo doprowadzona zostanie tzw. siła.
- planowana inwestycja wzniesiona zostanie w umiarkowanie cichej i spokojnej okolicy.
- w pobliżu znajduje się Galeria Niwa, wielkopowierzchniowy sklep sieci Lidl, inne punkty handlowo usługowe oraz szkoły. Cały teren wokół nieruchomości zostanie ogrodzony i w pełni wyposażony w niezbędną infrastrukturę, m. in. drogę dojazdową, chodniki, lampy uliczne, itp.
- w pobliżu funkcjonują również przedszkola, szkoły a także ośrodek zdrowia oraz tereny sportowo – rekreacyjne, atrakcyjna architektura zieleni.
- osoby preferujące równowagę pomiędzy komfortem mieszkania, bliskością do centrum miasta i zielonym otoczeniem z pewnością znajdą tu coś dla siebie.
- CO oraz woda użytkowa zapewniona z miejskiej sieci grzewczej. Zastosowano tu ogrzewanie podłogowe.
- w garażu podziemnym
- w cenie 50 000 zł z komórką lokatorską,
- w cenie 45 000 zł bez komórki lokatorskiej,
- na parkingu przed budynkiem, za kwotę 30 000 zł.
PRZEWIDYWANY CZAS ZAKOŃCZENIA PRAC BUDOWLANYCH
Zakończenie prac, w ramach których wzniesiony zostanie budynek panuje się na IV kwartał 2024 r.
DOSTĘPNE WARIANTY LOKALI MIESZKALNYCH
W budynku dostępnych będzie 32 lokali mieszkalnych. Kupujący będą mogli nabyć mieszkania jedno, dwu lub trzypokojowe o powierzchniach od ok. 28 m2 do 68 m2.
W dołączonych do oferty zdjęciach pokazano przykładowe rozkłady pomieszczeń, dla różnych wariantów mieszkań.
W celu uzyskania dalszych informacji lub dokonania rezerwacji apartamentu zapraszamy do naszego biura.
Nota prawna
balkonów/tarasów





