Podobne oferty
KBN-MS-1805 -- || -- GBI-MS-2130 -- || -- GBI-MS-2131 -- || -- GBI-MS-2132 -- || --Oświęcim,
mieszkanie na sprzedaż
Liczba pokoi
3
3
m2
67,92
67,92
zł/m2
9 400,00
9 400,00
638 448 zł
Opis nieruchomości
Umów się już dziś na prezentację swojego przyszłego mieszkania!
Marzysz o nowoczesnym, funkcjonalnym lokum w świetnej lokalizacji? Poznaj wyjątkową ofertę apartamentu w inwestycji „Apartamenty Parkowe” – osiedlu, które łączy komfort mieszkania w nowoczesnym budynku z dogodnym dostępem do miejskich udogodnień i zielonych terenów rekreacyjnych.
Doskonała lokalizacja
Inwestycja położona jest w umiarkowanie cichej i spokojnej okolicy, jednocześnie z świetnym dostępem do infrastruktury miejskiej. W najbliższym otoczeniu znajdują się:
Galeria Niwa, sklep Lidl, punkty handlowo-usługowe
szkoły, przedszkola, ośrodek zdrowia
tereny sportowo-rekreacyjne oraz atrakcyjna architektura zieleni
wygodny dojazd do centrum miasta oraz komunikacji miejskiej
Idealna propozycja dla osób ceniących harmonię między wygodą życia, bliskością natury i infrastrukturą miejską.
Opis przykładowego mieszkania
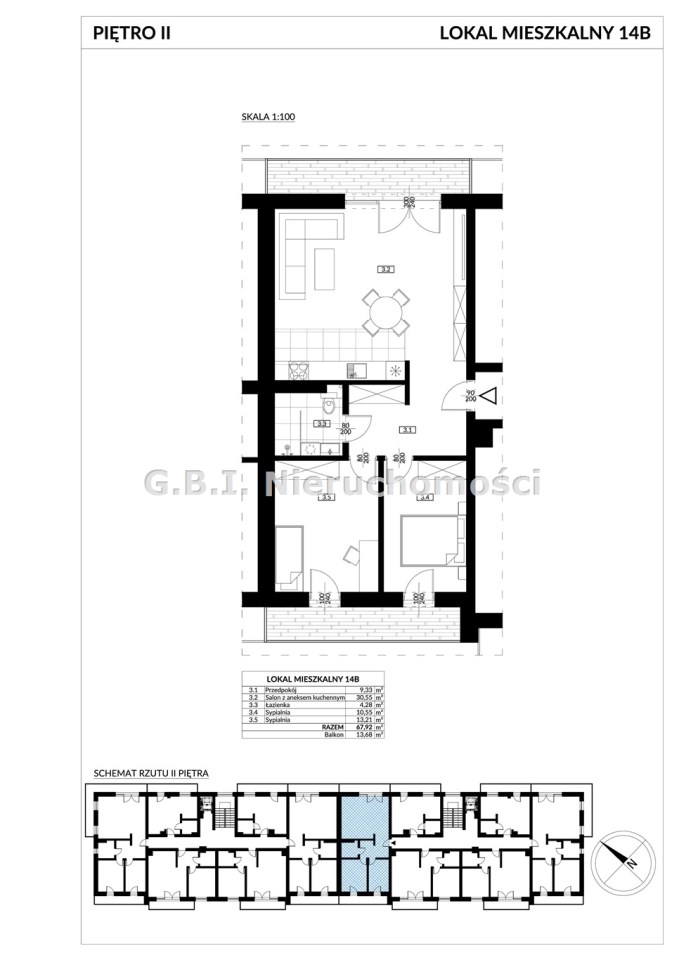
Oferujemy nowe, 3 pokojowe mieszkanie na 2 piętrze apartamentowca
jako przykład jednego z wielu lokali mieszkalnych mieszczących się w budynku, który zostanie wzniesiony na nowo powstałym osiedlu "Apartamenty Parkowe".
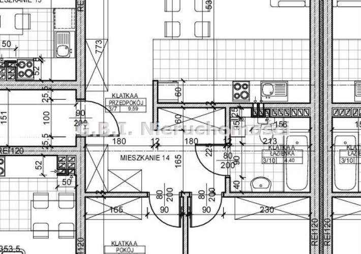
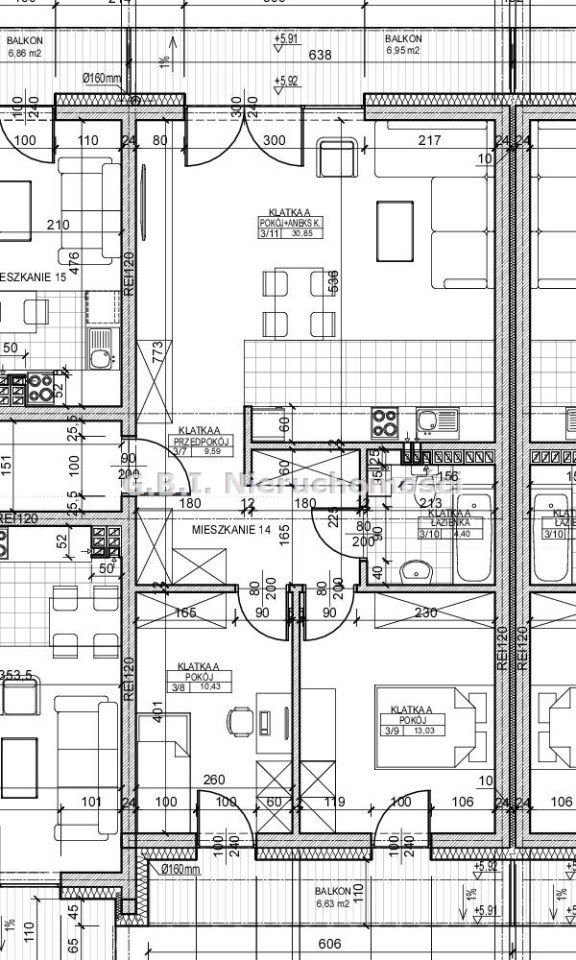
Lokal o łącznej pow. użytkowej wynoszącej 67,92 m2 składa się z następujących pomieszczeń:
* OGÓLNY OPIS INWESTYCJI *
Podana cena dotyczy przykładowej oferty – dostępne są różne metraże i układy mieszkań.
Najważniejsze atuty inwestycji
✔ klimatyzacja w każdym mieszkaniu
✔ ogrzewanie podłogowe, CO i ciepła woda z miejskiej sieci
✔ winda firmy OTIS
✔ taras lub balkon w każdym lokalu (wykończenie szkło, metal, deska kompozytowa)
✔ ściany z cegły silikatowej – świetna akustyka i izolacja termiczna
✔ osiedle ogrodzone, pełna infrastruktura drogowa i oświetlenie
✔ możliwość zakupu mieszkania wykończonego pod klucz
Standard deweloperski pozwala na swobodną aranżację wnętrz, a opcjonalna usługa „pod klucz” umożliwia wprowadzenie się od razu po odbiorze mieszkania – bez dodatkowego stresu i poszukiwania ekip remontowych.
Do każdego lokalu mieszkalnego obligatoryjnie należy kupić miejsce postojowe - do wyboru:
garaż podziemny z komórką lokatorską – 50 000 zł
garaż podziemny bez komórki – 45 000 zł
miejsce zewnętrzne – 30 000 zł
Zapraszamy do kontaktu
Nie zwlekaj – zarezerwuj spotkanie i zobacz na żywo swój przyszły apartament!
Skontaktuj się z naszym biurem w celu uzyskania szczegółowych informacji, rezerwacji mieszkania.
Marzysz o nowoczesnym, funkcjonalnym lokum w świetnej lokalizacji? Poznaj wyjątkową ofertę apartamentu w inwestycji „Apartamenty Parkowe” – osiedlu, które łączy komfort mieszkania w nowoczesnym budynku z dogodnym dostępem do miejskich udogodnień i zielonych terenów rekreacyjnych.
Doskonała lokalizacja
Inwestycja położona jest w umiarkowanie cichej i spokojnej okolicy, jednocześnie z świetnym dostępem do infrastruktury miejskiej. W najbliższym otoczeniu znajdują się:
Galeria Niwa, sklep Lidl, punkty handlowo-usługowe
szkoły, przedszkola, ośrodek zdrowia
tereny sportowo-rekreacyjne oraz atrakcyjna architektura zieleni
wygodny dojazd do centrum miasta oraz komunikacji miejskiej
Idealna propozycja dla osób ceniących harmonię między wygodą życia, bliskością natury i infrastrukturą miejską.
Opis przykładowego mieszkania
Oferujemy nowe, 3 pokojowe mieszkanie na 2 piętrze apartamentowca
jako przykład jednego z wielu lokali mieszkalnych mieszczących się w budynku, który zostanie wzniesiony na nowo powstałym osiedlu "Apartamenty Parkowe".
Lokal o łącznej pow. użytkowej wynoszącej 67,92 m2 składa się z następujących pomieszczeń:
- przedpokoju 9,33 m2,
- pokój / sypialnia 10,55 m2,
- pokój / sypialnia 13,21 m2,
- łazienki z WC 4,28 m2,
- salon + aneks kuchenny 30,55 m2.
- balkon 13,70 m2.
* OGÓLNY OPIS INWESTYCJI *
Podana cena dotyczy przykładowej oferty – dostępne są różne metraże i układy mieszkań.
Najważniejsze atuty inwestycji
✔ klimatyzacja w każdym mieszkaniu
✔ ogrzewanie podłogowe, CO i ciepła woda z miejskiej sieci
✔ winda firmy OTIS
✔ taras lub balkon w każdym lokalu (wykończenie szkło, metal, deska kompozytowa)
✔ ściany z cegły silikatowej – świetna akustyka i izolacja termiczna
✔ osiedle ogrodzone, pełna infrastruktura drogowa i oświetlenie
✔ możliwość zakupu mieszkania wykończonego pod klucz
Standard deweloperski pozwala na swobodną aranżację wnętrz, a opcjonalna usługa „pod klucz” umożliwia wprowadzenie się od razu po odbiorze mieszkania – bez dodatkowego stresu i poszukiwania ekip remontowych.
Do każdego lokalu mieszkalnego obligatoryjnie należy kupić miejsce postojowe - do wyboru:
garaż podziemny z komórką lokatorską – 50 000 zł
garaż podziemny bez komórki – 45 000 zł
miejsce zewnętrzne – 30 000 zł
Zapraszamy do kontaktu
Nie zwlekaj – zarezerwuj spotkanie i zobacz na żywo swój przyszły apartament!
Skontaktuj się z naszym biurem w celu uzyskania szczegółowych informacji, rezerwacji mieszkania.
Nota prawna
Opis oferty zawarty na stronie internetowej sporządzany jest na podstawie oględzin nieruchomości oraz informacji uzyskanych od właściciela, może podlegać aktualizacji i nie stanowi oferty określonej w art. 66 i następnych K.C.
Podstawowe
Symbol oferty
GBI-MS-2133
Powierzchnia
67,92 m²
Powierzchnia użytkowa
67,92 m²
Powierzchnia
balkonów/tarasów
balkonów/tarasów
13,68 m²
Liczba pokoi
3
Piętro
2
Szczegóły
Rodzaj budynku
apartamentowiec
Technologia budowlana
inna
Standard





Liczba pięter w budynku
2
Garaż
garaż
Stan lokalu
Do wykończenia
Stan prawny
Własność
Okna
nowe PCV
Instalacje
nowe
Balkon
jest
Liczba balkonów
2
Rok budowy
2024
Widok
na inne budynki
Gaz
brak
Woda
tak - miejska
Dojazd
asfalt
Otoczenie
zabudowa wielorodzinna
Ogrzewanie
miejskie
Winda
tak
Liczba wind
1
Usytuowanie
dwustronne
Cena garażu
50000
Pomieszczenia
Rodzaj kuchni
aneks kuchenny - połączony z salonem
Powierzchnia kuchni
m2
Typ łazienki
razem z wc
Powierzchnia łazienki
m2
Liczba przedpokoi
1
Kontakt z agentem
